Poznaj naszą ofertę

Oferta

Planowanie 3D, Koordynacja BIM

Koncepcje projektowe

Funkcjonalne i optymalne koncepcje rozwiązań projektowanych obiektów

Planowanie 3D

Przestrzenna koncepcja konstrukcji

Koordynacja BIM

Prowadzenie koordynacjimodeli BIM

Projekty koncepcyjne
i planowanie 3D

Oferujemy przygotowanie koncepcji projektowych, opracowanie wizualizacji 3D z uwzględnieniem wymagań technologii i architektury. Prowadzimy koordynację BIM modeli 3D z uwzględnieniem kolizyjności na każdym etapie projektowym.

Analizy i obliczenia statyczno - wytrzymałościowe

Analizy i obliczenia konstrukcji stalowych

Projektowanie konstrukcji szkieletowych w oparciu o zaawansowane metody obliczeniowe

Analizy i obliczenia konstrukcji żelbetowych

Wymiarowanie i obliczania elementów żelbetowych, projektowanie złożonych układów przestrzennych

Analizy Metodą Elemntów skończonych - MES

Obliczenia statyczno-wytrzymałościowe wykorzystujące Metodę Elementów Skończonych

Zaawansowane analizy
i obliczenia konstrukcji stalowych i żelbetowych

Oferujemy wykonywanie analiz statyczno – wytrzymałościowych konstrukcji stalowych i żelbetowych według norm Eurocod. Analizy obejmują: obliczenia stanu granicznego nośności, stateczności i użytkowalności, obliczenia dynamiczne, obliczenia odporności ogniowej, analiza zmęczenia materiału, sejsmikę. Dla bardziej skomplikowanych elementów wykonujemy analizy metodą elementów skończonych (MES).

Projektujemy wykorzystując specjalistyczne oprogramowaniedo analiz i obliczeń konstrukcji: Robot Structural Analysis Professional, SCIA Engineer, IDEA StatiCA, RSTAB, Dlubal RFEM, ANSYS.

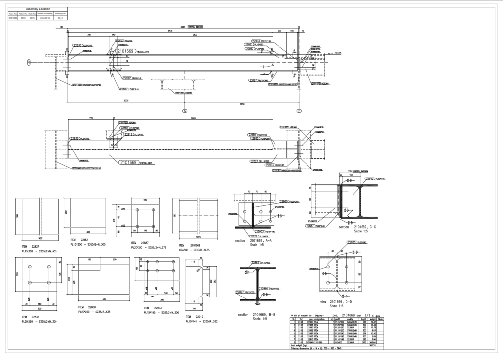
Projekty wykonawcze, projekty warsztatowe

Projekty wykonawcze konstrukcji stalowych

Obliczenia statyczne połączeń węzłowych,model 3D konstrukcji, rysunki wykonawcze detali konstrukcyjnych

Projekty wykonawcze konstrukcji żelbetowych

Wymiarowanie prętów i powierzchni z betonu zbrojonego, dokumentacja konstrukcyjna w oparciu o model 3D

Projekty warsztatowe

Rysunki elementów konstrukcyjnych, plany montażowe,
listy materiałowe, strukturalne, wysyłkowe, pliki NC i DSTV

Kompleksowe przygotowanie projektu wykonawczego, dokumentacji warsztatowej oraz dokumentacji powykonawczej

Realizujemy projekty wykonawcze na podstawie danych założeniowych klienta lub na podstawie własnych analiz statyczno – wytrzymałościowych. Pracujemy w oparciu o specjalistyczne oprogramowanie do projektowania konstrukcji (Robot Structural Analysis Professional, SCIA Engineer, IDEA StatiCA, Tekla Structures, AVEVA Bocad, Autodesk Revit Structure).

Optymalizacja i doradztwo

Optymalizacja konstrukcji

Optymalizacja rozwiązań, które przy spełnieniu wszystkich wymagań zapewniają najniższe koszty produkcji, transportu i montażu

Doradztwo i opiniowanie

Doradztwo i opiniowanie w zakresie prac studialnych, koncepcyjnych i wdrożeniowych

Nadzory autorskie

Nadzór autorski projektowanych obiektów. Konsultacje i doradztwo na placu budowy

Optymalizacje konstrukcji, doradztwo, konsultacje i weryfikacje techniczne, pełnienie nadzorów autorskich

Projektowanie przy zastosowaniu zaawansowanych technik obliczeniowych pozwala na zagwarantowanie ekonomicznego zużycia materiałów. Procesy projektowe wspierane analizami numerycznymi zapewniają najniższe koszty produkcji, transportu i montażu.

Korzystając ze swojego bogatego doświadczenia i szerokiej wiedzy fachowej doradzamy i opiniujemy w zakresie możliwości i metod optymalizacji konstrukcji, koordynacji BIM, czy najnowszych technik projektowania.

Oferujemy pełnienie nadzorów autorskich oraz autoryzację dokumentacji technicznej zgodnie z przepisami Prawa Budowlanego.